Monteiro Lobato

Santa Maria / RS
2017

Monteiro Lobato

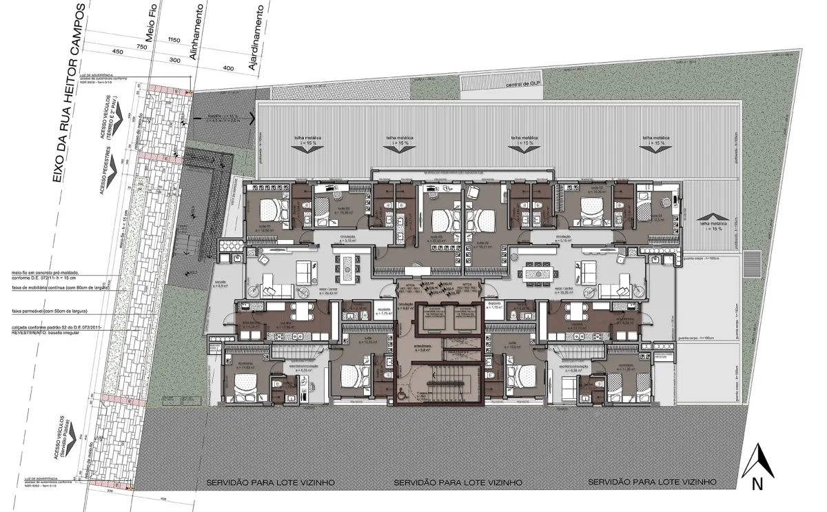
Projeto do edifício Residencial Multifamiliar Monteiro Lobato

 

Localizado ao lado da Basílica da Medianeira, o Residencial Monteiro Lobato possui 15 pavimentos de altura, 2 subsolos e mais de 8 mil metros quadrados.

 

O projeto como um todo possui 17 lajes, sendo 4 de garagens e 13 de apartamentos. Alguns pontos merecem destaque: A servidão que corta o terreno, é utilizada para acessar os dois pavimentos do subsolo. São basicamente 2 tipos de apartamentos; um com 3 suítes e resolvido em um nível, enquanto o outro é um duplex com 2 suítes, contendo a área social no pavimento inferior e área íntima no pavimento superior. As coberturas, ao contrário do usual, são horizontais, resultando em duas unidades com terraço e piscina no último pavimento da edificação; Como os apartamentos não possuem sanitário de serviço, um conjunto de sanitários/vestiários de serviço foi criado para suprir essa necessidade.

 

O Residencial Monteiro Lobato não é só mais um edifício na skyline de Santa Maria, é fruto do nosso trabalho e da nossa constante busca para fazer uma arquitetura em concordância com o nosso tempo e local.

 

Fotos Vitor Ceolin